Rif: 726
CAMPI BISENZIO
FIRENZE
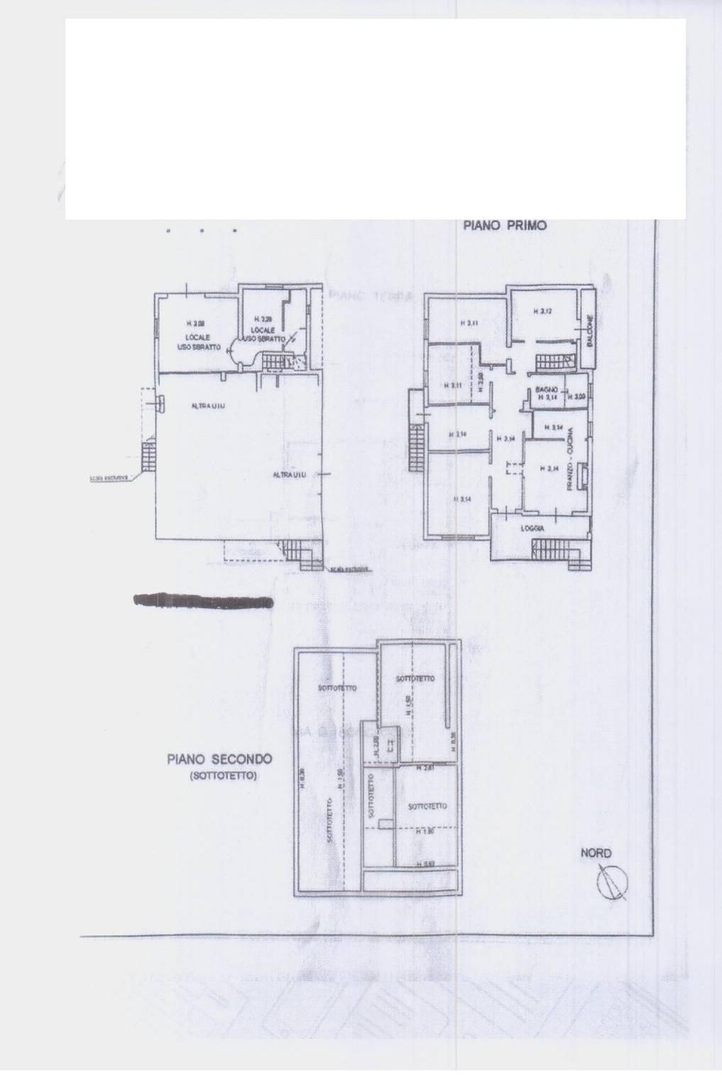
Campi BIsenzio pressi via Buozzi in una bellissima via senza traffico vendiamo bellissima villa libera 4 lati nel cuore del paese vicino a tutti i mezzi e servizi al piano terra rialzato tramite una scala raggiungiamo un terrazzo abitabile un ingresso un soggiorno un tinello cucinotto con caminetto, tre camere matrimoniali e una singola un grande bagno con finestra tramite una scala scendiamo al piano terra dove troviamo una grande taverna con lavanderia in più sempre al piano terra abbiamo tre stanze in tutto mq 50 circa adibite a magazzino con possiilità di fare anche una lavanderia concludiamo la proprietà con 400mq di giardino con 4 posti auto o anche di più inoltre al secondo piano si può sfruttare una mansarda di mìq 100 la villa e adatta anche a essere divisa in due appartamenti grazie al doppio ingresso esterno sul lato della villa adatta genitore e figlio Eu. 690000 classe energetica in corso
Consistenze
| Descrizione | Superficie | Sup. comm. |
|---|---|---|
| Principali | ||
| Immobile - piano terra | 380 Mq | 380 Mqc |
| Totale | 380 Mqc | |






